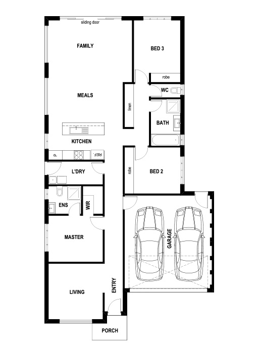
Everton 20
Living 3.6 x 3.5 m
Family 3.7 x 5.4 m
Meals 2.9 x 3.6 m
Kitchen 2.9 x 3.6 m
Master Bedroom 3.0 x 3.5 m
Bedroom 2 3.0 x 3.0 m
Bedroom 3 3.4 x 3.0 m
Garage 5.5 x 6.0 m
Overall dimensions
Width 10.85m
Length 19.73m
Total House Area 19.80m
Minimum Site
Width 12.5m
Length 27m
X
















