Hamlin 21
Ground floor
Living 4.5 x 3.0 m
Family 3.6 x 4.1 m
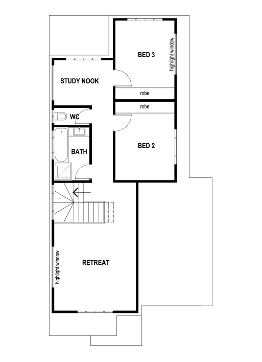
Retreat 4.1 x 4.1 m
Meals 4.4 x 3.6
Kitchen 3.5 x 4.4 m
Master Bedroom 3.5 x 2.9 m
Garage 3.5 x 6.0 m
Alfresco 2.0 x 3.0 m
First Floor
Bedroom 2 3.4 x 3.0 m
Bedroom 3 3.4 x 3.0m
Study 2.3 x 1.9 m
Overall dimensions
Width 8.20m
Length 16.00m
Total House Area 20.83sq
Minimum Site
Width 10m
Length 25m














