Haven 24
Ground floor
Living 4.8 x 4.4 m
Meals 4.7 x 2.5 m
Kitchen 2.6 x 3.2 m
Master Bedroom 4.3 x 3.1 m
Garage 5.5 x 6.0 m
Alfresco 4.1 x 2.5 m
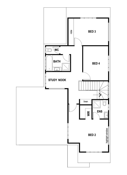
First Floor
Bedroom 2 3.3 x 3.1 m
Bedroom 3 3.0 x 3.8 m
Bedroom 4 3.8 x 2.8 m
Study 1.8 x 2.5 m
Overall dimensions
Width 10.50m
Length 17.30m
Total House Area 24.20sq
Minimum Site
Width 12.5m
Length 25m














