Portland 29
Ground floor
Living 5.0 x 4.1 m
Meal 5.0 x 3.3 m
Kitchen 5.0 x 2.6 m
Master Bedroom 4.0 x 3.5 m
Study 3.0 x 2.1 m
Garage 5.5 x 6.0 m
Alfresco 4.0 x 5.0 m
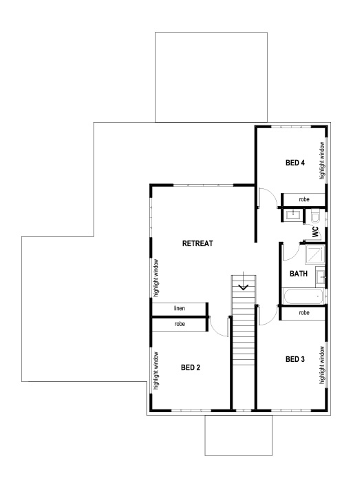
First Floor
Retreat 5.2 x4.6 m
Bedroom 2 3.5 x 3.5 m
Bedroom 3 4.0 x 3.0 m
Bedroom 4 2.9 x 3.0 m
Overall dimensions
Width 13.80m
Length 19.15m
Total House Area 29.02sq
Minimum Site
Width 16m
Length 26m














