Varad 28
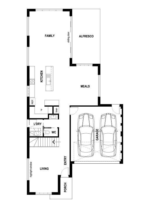
Ground floor
Living 4.9 x 3.1 m
Family 6.0 x 4.4 m
Meals 4.3 x 3.1 m
Kitchen 4.3 x 3.2 m
Garage 5.5 x 6.0 m
Alfresco 6.0 x 3.1 m
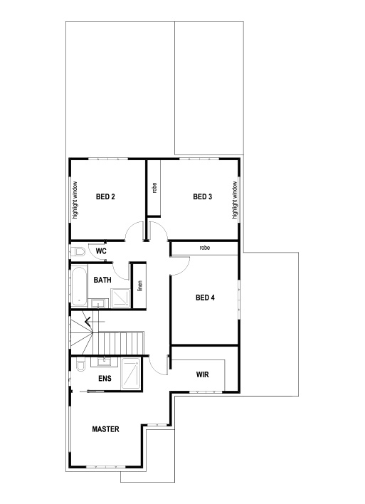
First Floor
Master Bedroom 3.3 x 3.1 m
Bedroom 2 3.6 x 3.3 m
Bedroom 3 3.6 x 3.5 m
Bedroom 4 4.0 x 3.0 m
Overall dimensions
Width 12.20m
Length 20.24m
Total House Area 28.38sq
Minimum Site
Width 14m
Length 30m














