Weekender 31
Ground floor
Living 6.0 x 3.1 m
Family 5.1 x 2.9 m
Meal 5.1 x 2.8 m
Kitchen 5.1 x 2.6 m
Bedroom 4 2.9 x 3.0 m
Study 3.0 x 2.1 m
Garage 5.5 x 6.0 m
Alfresco 4.0 x 5.0 m
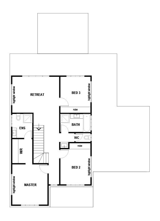
First Floor
Master Bedroom 4.0 x 3.5 m
Retreat 3.6 x 4.6 m
Bedroom 2 3.5 x 3.5 m
Bedroom 3 4.0 x 3.0 m
Overall dimensions
Width 13.80m
Length 17.06m
Total House Area 30.78sq
Minimum Site
Width 16m
Length 26m














